Home
The Project
Construction progress
For rent
Layout plan
Location
Contact
Rental service
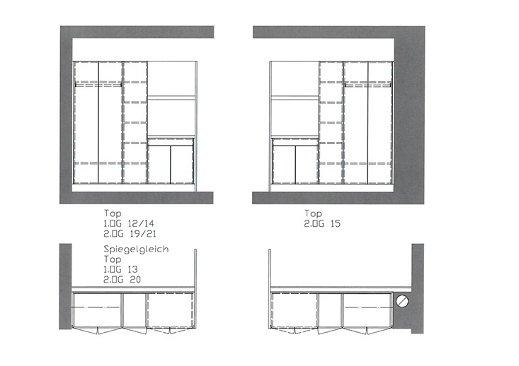
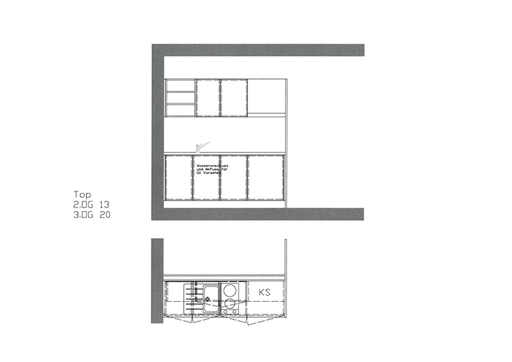
3 - 3
<
>
back
A project by Liegenschaftsverwaltungs GmbH | Langkampfner Straße 4 | 6330 Kufstein | lucasa@lucasa.at | Imprint